Luxuries restaurant layout plan and equipment cad drawing details dwg file
Description
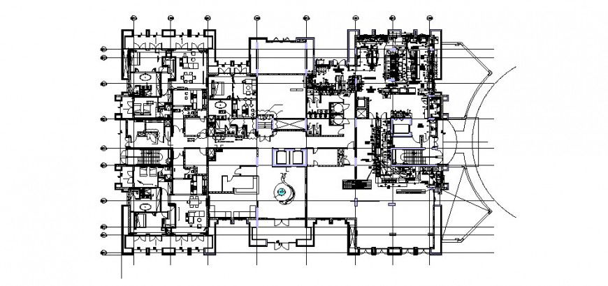
Luxuries restaurant layout plan and equipment cad drawing details that includes a detailed view of car parking view with garden area, decorative equipment, furniture details, reception area, waiting lounge, dining area, banquaet hall, kitchen, cleaning department, staff room, sanitary facilities, furniture details, interior details and much more of restaurant project.

Uploaded by:
Eiz
Luna

