Luxuries hotel cut elevation and floor plan cad drawing details dwg file
Description
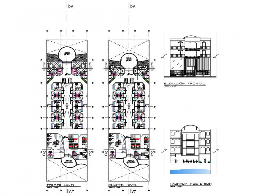
Luxuries hotel cut elevation and floor plan cad drawing details that includes a detailed view of flooring view, doors and windows view, staircase view, balcony view, wall design, dimensions, roof or terrace view, parking area, outdoor garden, reception area, waiting lounge, dining area, banquet hall and much more of hotel section details.

Uploaded by:
Eiz
Luna

