Aluminum Door CAD Drawing
Description
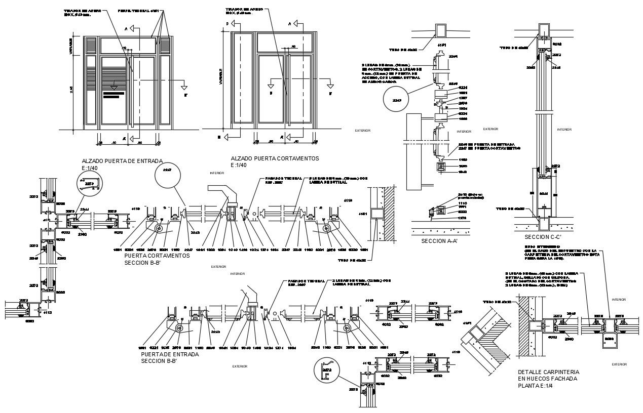
Aluminum Door CAD Drawing; A Standard Aluminum door is made of extruded aluminum with carpentry detail, installation detail and description for easy to understand the door installation drawing.
File Type:
DWG
File Size:
467 KB
Category::
Dwg Cad Blocks
Sub Category::
Windows And Doors Dwg Blocks
type:
Gold
Uploaded by:

