2D House First floor Plan AutoCAD Drawing
Description
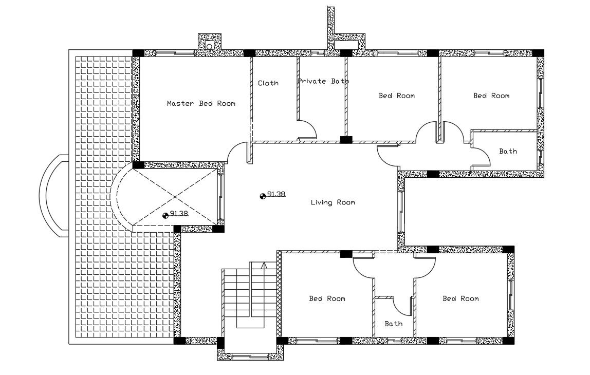
2D CAD drawing of residence house first-floor plan AutoCAD drawing includes a living room, 5 bedrooms, and a column with wall layout plan design. download DWG file of house first-floor plan drawing.
Uploaded by:

