3 BHK House Plumbing Layout Plan Drawing
Description
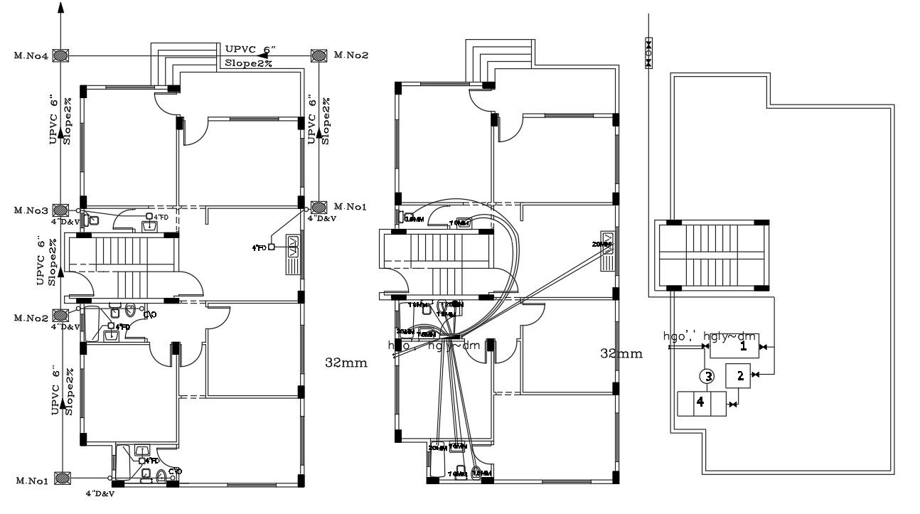
30 Feet by 55 Feet plot ground floor plan includes 3 bedrooms with 1 attached toilet house plan drawing includes plumbing layout plan that shows pipeline connects to kitchen and bathroom. also has the detail of drainage line which is a direct connection to chamber box and gone the main manhole.
Uploaded by:

