Floor Plans Of Modern Architectural Bungalow With Working DWG
Description
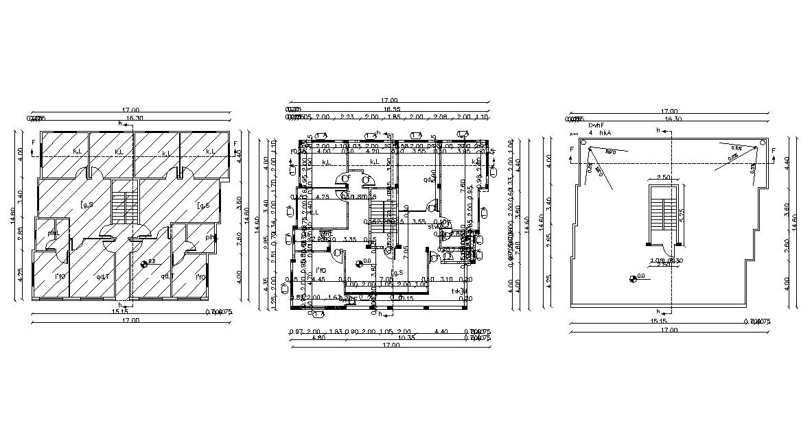
working drawing plan of huge bungalow layout design with structural column design, terrace floor plan, rainwater pipes details in the terrace, doors, and windows marking in the plan, section line on the plan and other more details related to drawing.
Uploaded by:
Rashmi
Solanki

