Slab Section details of basement of hospital building is given in this autocad DWG drawing file. Download the Autocad DWG drawing file.
Description
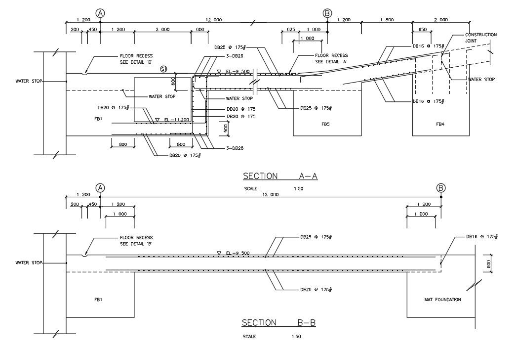
Slab Section details of basement of hospital building is given in this autocad DWG drawing file. Mat foundation is mentioned in this drawing file. Water stops or water bars are flexible tape like elements of a concrete structure that prevent the passage of water through concrete joints. Concrete joints are most liable to seepage. Thank you for downloading the autocad file and other CAD program files from our cadbull website.
Uploaded by:

