27'x27' Architecture House Layout Plan Drawing DWG File
Description
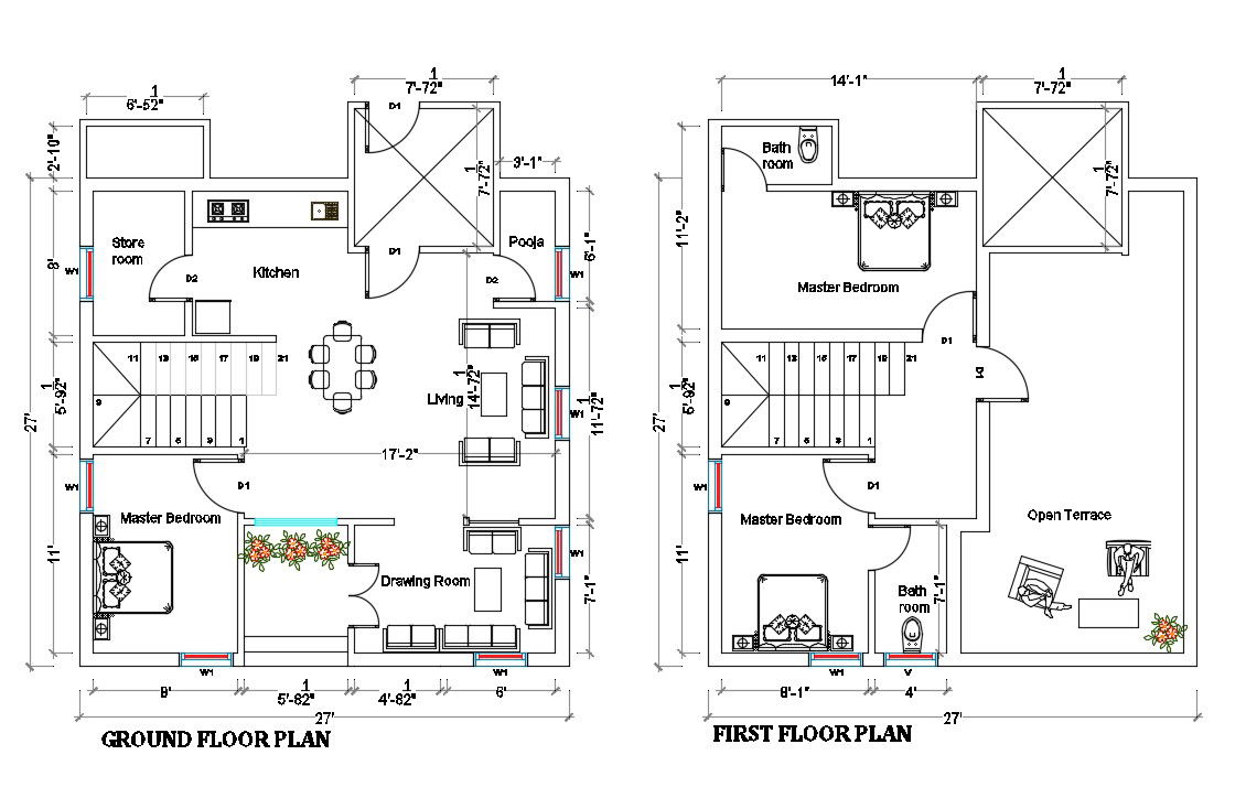
Design of a Duplex Independent House size 27'x27'. It has been designed on G+1 storey floor. Here it accommodates a spacious 3 bedrooms, kitchen, living area, drawing room, pooja room, storeroom, inside staircase with open terrace. the architecture presenting house ground floor and first floor layout plan with furniture design and dimension detail in dwg file. Thank you for downloading the AutoCAD drawing file and other CAD program files from our website.
Uploaded by:

