fan coil unit piping system
Description
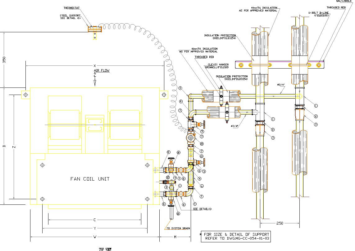
Here A fan coil unit is a simple part of heating, ventilation and air conditioning system that are found in almost all residential, industrial and commercial buildings. It is a simple device that comprises of a heating and a cooling heat exchange that can also be called as coil and fan. Fan coil units are standalone systems that circulate the existing air in a space. fan coil controller the most common piping arrangements in hydroponic systems for heating and cooling are two-pipe and four-pipe systems. The two or four-pipe designation refers to the water distribution system serving the climate control equipment in a building. A fan coil unit is a relatively small piece of equipment that consists of a fan, a coil, and other components, that are used to cool or heat the air recirculating within a room. Some will also add fresh air to the space. The units are quite common and can be found in most commercial or residential applications. for more details of fan coil unit piping system download this file .
File Type:
DWG
File Size:
5.2 MB
Category::
Dwg Cad Blocks
Sub Category::
Autocad Plumbing Fixture Blocks
type:
Gold
Uploaded by:
zalak
prajapati
