Design of washroom with detailing
Description
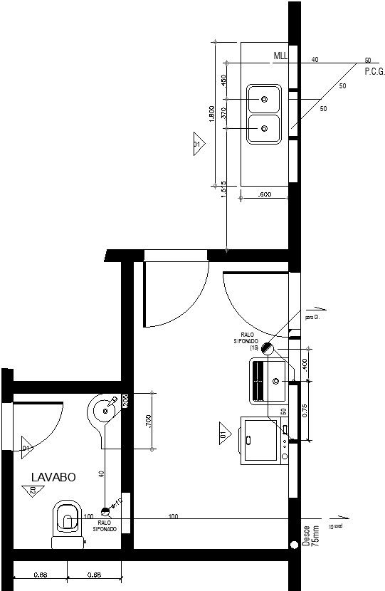
This architectural drawing is Design of washroom with detailing. In this drawing there were size of sink is 0.600x1.800m. This is precisely why the subtleties of toilet and bath design are actually quite important–the proper floor layout and bath/toilet design ensures there is enough walking space, storage space and general flow. For more details and information download the drawing file.
File Type:
DWG
File Size:
168 KB
Category::
Interior Design
Sub Category::
Architectural Bathrooms And Interiors
type:
Gold
Uploaded by:
viddhi
chajjed

