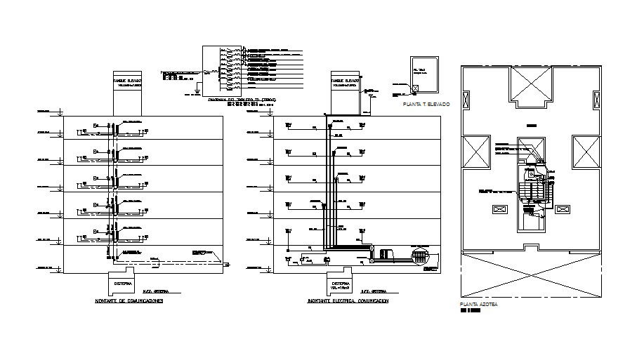
Electrical installation and riser diagram details of apartment floors dwg file
Description
Electrical installation and riser diagram details of apartment floors that includes a detailed view of power layout details, lighting layout details, computation and schedule of loads, general notes and specifications, panel board details, riser diagram, convienence details, legends and electric equipment details, cable details, dimensions details and much more of electrical installation details.
File Type:
DWG
File Size:
72 KB
Category::
Electrical
Sub Category::
Architecture Electrical Plans
type:
Gold
Uploaded by:

