LOGIN
HOME
CATEGORIES
UPLOAD FILE
PRICING
HOUSE PLAN
ABOUT US
CONTACT US
Residential bunglow of autocad
Home
Categories
Architecture
Bungalow House Design
Residential bunglow of autocad
Uploaded by:
K.H.J
Jani
View Profile
View Profile
Description
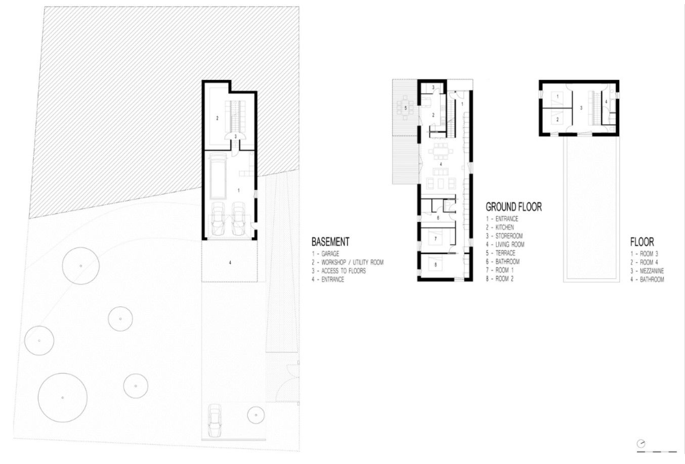
Residential bunglow of autocad it include basement plan,ground floor,floor layout it also include kitchen,dinning,living area,store room,bathroom,etc
File Type:
DWG
File Size:
1.8 MB
Category::
Architecture
Sub Category::
Bungalow House Design
type:
Gold
Uploaded by:
K.H.J
Jani
View Profile
Download
Add to libary
find Latest
Related
Files