2d layout plan of housing living apartment dwg file
Description
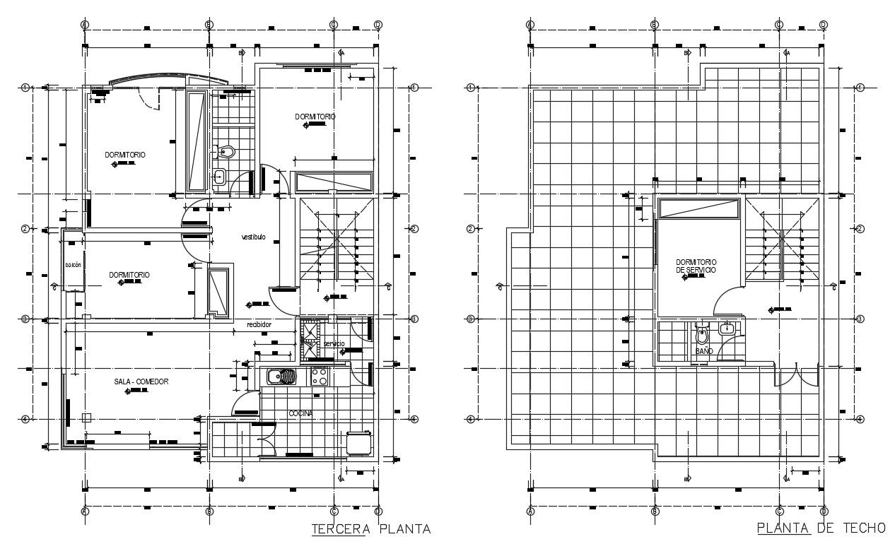
2d layout plan of housing living apartment dwg file that shows work plan drawings details of house along with floor level details and room details of drawings room, bedroom, kitchen and dining area, sanitary toilet and bathroom also included in drawings. Staircase details with dimension hidden line details also presented in this drawings.
File Type:
DWG
File Size:
518 KB
Category::
Interior Design
Sub Category::
House Interiors Projects
type:
Gold

Uploaded by:
Eiz
Luna

