Hostel cut traverse section, floor plan and structure details dwg file
Description
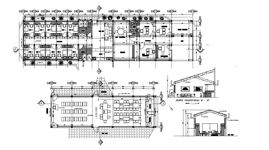
Hostel cut traverse section, floor plan and structure details that includes a detailed view of flooring view with doors and windows view and staircase view details, balcony view with wall design, dimensions and roof or terrace view with reception area, waiting area, gym with waiting lounge, hostel offices, laundry room, warden, indoor stairs provide. Sanitary facilities with indoor doors and windows and rooms and much more of hostel project.
Uploaded by:
Eiz
Luna

