40' X 50' Feet Residence 3 BHK Bungalow CAD Plan
Description
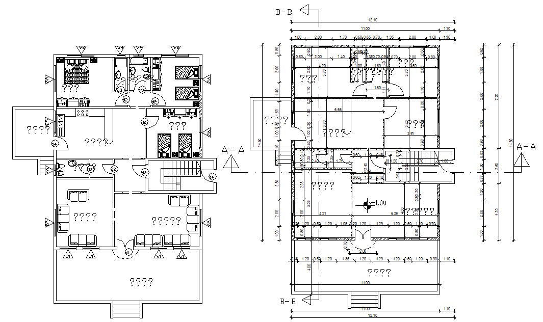
2000 sq ft Furnished bungalow layout and a working floor plan that shows bungalow all dimension working set with furniture arrangement in each room, floor level, staircase, section line, open space area, room size, and various other amenities details. Download architecture bungalow floor layout CAD presented a plan for a detailed working drawing.

Uploaded by:
akansha
ghatge

