Solar Water Heater Plant AutoCAD Drawing
Description
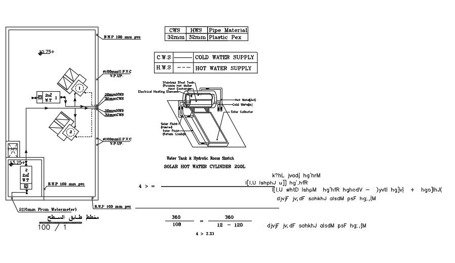
solar collectors mounted to roof per local code and manufacturer recommended installation instruction also its connecting domestic hot water system vent design. download solar water heater plant design free download DWG file.
File Type:
DWG
File Size:
2.8 MB
Category::
Electrical
Sub Category::
Electrical Automation Systems
type:
Gold
Uploaded by:
K.H.J
Jani

