DWG File Featuring Foundation Plan and Detailed Sectional Drawing
Description
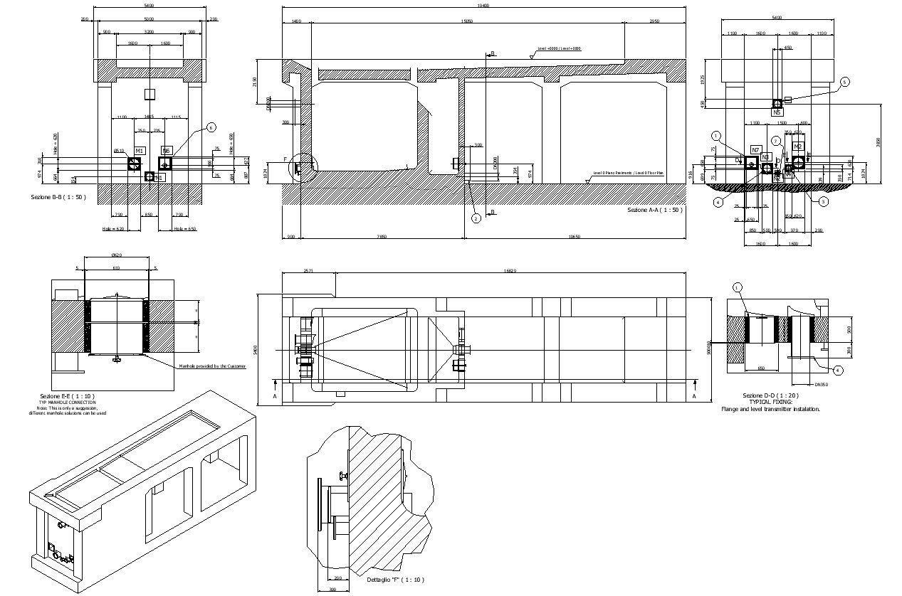
Explore the convenience of our DWG file, showcasing a comprehensive Foundation Plan and intricately detailed Sectional Drawing. This user-friendly AutoCAD file ensures easy access to essential CAD drawings, providing a seamless experience for your architectural projects. Dive into precision and efficiency with our thoughtfully crafted DWG files, simplifying your design process effortlessly.
File Type:
DWG
File Size:
—
Category::
Dwg Cad Blocks
Sub Category::
Autocad Plumbing Fixture Blocks
type:
Gold
Uploaded by:
K.H.J
Jani

