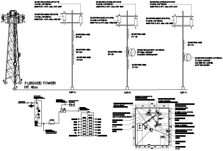
Tower installation with cabin, battery bank and leg installation dwg file
Description
Tower installation with cabin, battery bank and leg installation dwg file
Tower installation with cabin, battery bank and leg installation that includes a detailed view of battery bank, cable panel, tower hit, legged sst view, existing multiple antenna, existing multiple ports, legged electric installation view, dimensions, cable details like jumper cable, feeder cable etc, radio room, fuel tank, wire gen-set and much more of tower installation details.
File Type:
DWG
File Size:
1.3 MB
Category::
Electrical
Sub Category::
Architecture Electrical Plans
type:
Gold
Uploaded by:

