Huge Residential Building Electrical And Plumbing Design CAD
Description
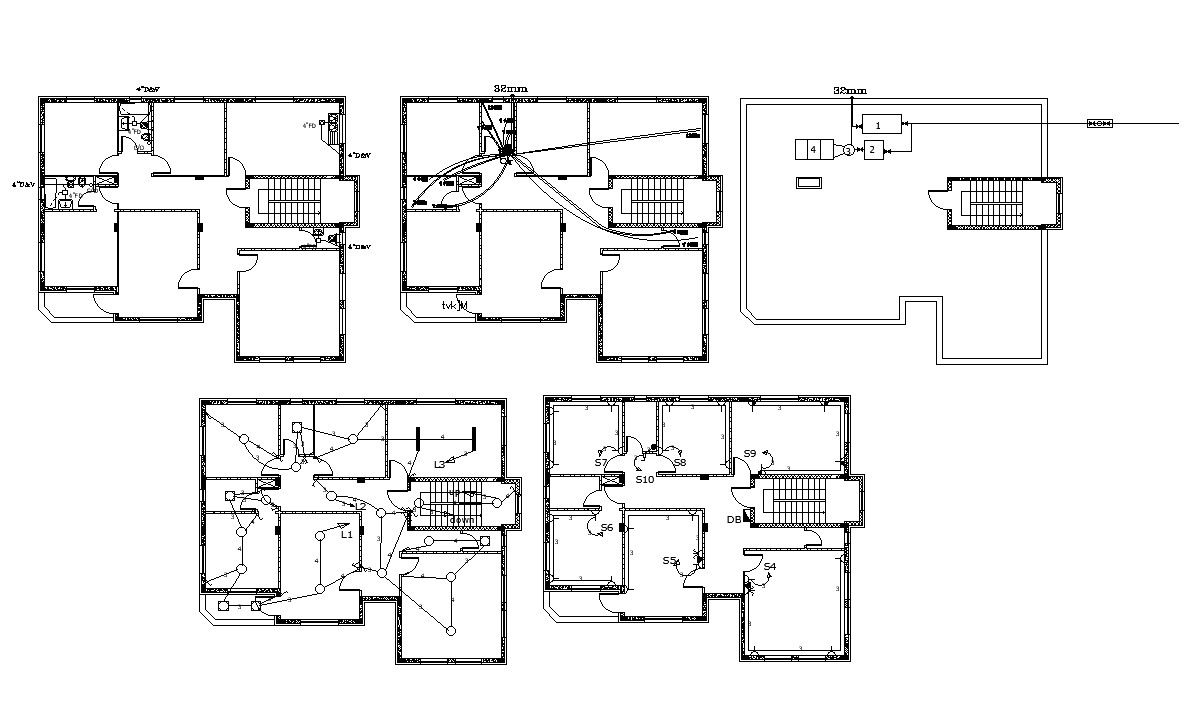
this is the many floor plans of house building desing with electrical layout plan, plumbing layout plan, terrace floor plan with solar plants marking, toilets and kitchen sanitary design with drainage pipes detail.
File Type:
DWG
File Size:
94 KB
Category::
Dwg Cad Blocks
Sub Category::
Autocad Plumbing Fixture Blocks
type:
Free
Uploaded by:
Rashmi
Solanki

