Plumbing Layout Plan Of Huge Bungalow Design AutoCAD File
Description
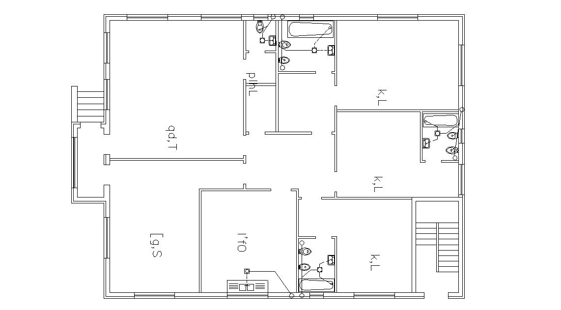
architectural drawing of huge bungalow planning with toilets and kitchen sanitary layout design and drainage pipes marking in plan, this is the planning of three bedrooms, toilets, drawing room, kitchen, dining area and other more functions.
File Type:
DWG
File Size:
474 KB
Category::
Dwg Cad Blocks
Sub Category::
Autocad Plumbing Fixture Blocks
type:
Free
Uploaded by:
Rashmi
Solanki

