Air ducting system
Description
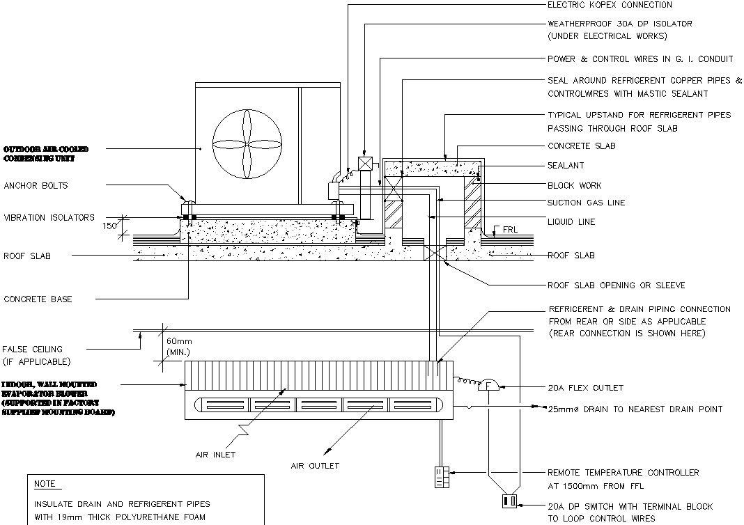
Here In air ducting systems, your air goes through a cycle. A negative pressure in the ducts sucks the air in, passing it through a filter. The cleaned air is heated or cooled and sent back to the areas of your house where it stays until it’s cycled again. Return Ducts Contrary to popular belief, HVAC systems get their air from inside the building. Air Flows in a Forced Air Duct System In HVAC systems, your air goes through a cycle. A negative pressure in the ducts sucks the air in, passing it through a filter. The cleaned air is heated or cooled and sent back to the areas of your house where it stays until it’s cycled again. including liquid line , gusting line , suction gas line , block work ,sealant , concrete slab ,election copper connection , vibration isolation , anchor bolts , concrete base , roof slab , remote temperature controller air ducting system for more details download this file.
File Type:
DWG
File Size:
5.2 MB
Category::
Dwg Cad Blocks
Sub Category::
Autocad Plumbing Fixture Blocks
type:
Gold
Uploaded by:
zalak
prajapati
