Steel Door Details in Plan and Elevation AutoCAD DWG Drawing
Description
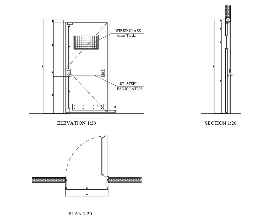
This AutoCAD DWG file provides detailed drawings of steel doors, showcasing both plan and elevation views. The design includes specifications such as steel gauge (ranging from 16 to 24), core material options like polyurethane or polystyrene, and dimensions suitable for various architectural applications. Ideal for architects, engineers, and designers, this drawing ensures accurate representation and integration of steel doors in building plans.
File Type:
DWG
File Size:
496 KB
Category::
Dwg Cad Blocks
Sub Category::
Windows And Doors Dwg Blocks
type:
Gold

Uploaded by:
Eiz
Luna

