2d psychiatric clinic cad file
Description
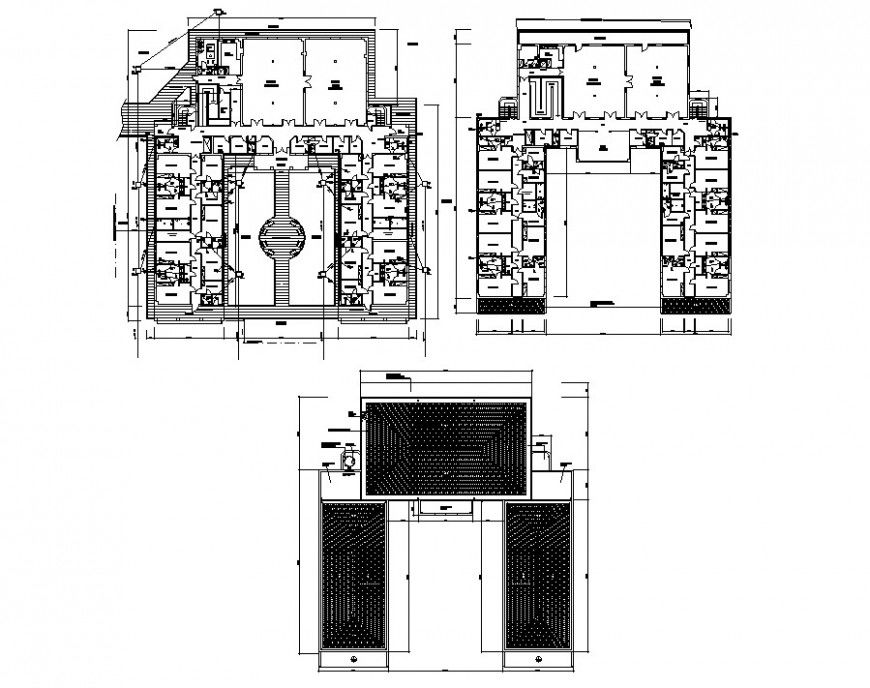
2d cad drawing of psychiatric clinic layout plan of ground floor and first floor along with roof plan, download in free autocad file and gats more detailing about clinic project.
Uploaded by:
Eiz
Luna
2d cad drawing of psychiatric clinic layout plan of ground floor and first floor along with roof plan, download in free autocad file and gats more detailing about clinic project.
Uploaded by:
Luna